Casa en venta en Collia, Asturias

Ref. 14915 263 m2 5 6
venta: 255.000 
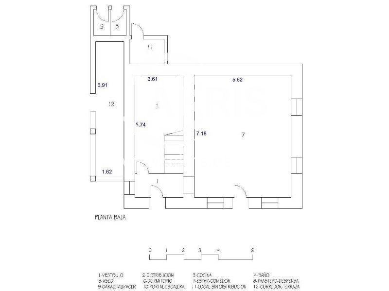
Vivienda unifamiliar pareada de 174,55 m2 útiles, desarrollada en tres plantas, distribuida en: -Planta baja con distribuidor, salón-comedor, cocina independiente sin amueblar y dos aseos. -Planta primera con distribuidor, cuatro dormitorios y dos baños (uno en suite). -Planta bajo cubierta con dos dormitorios y dos baños. Acondicionada para alojamiento turístico rural. La parcela dispone de piscina privada, almacén, hórreo y una edificación unifamiliar aislada de 209 m2 útiles desarrollada en dos plantas para rehabilitación integral. En Akris os ayudamos a cumplir vuestros Sueños Inmobiliarios. Encuentre mas inmuebles en www.akris.es

Índice de alquiler

Precio Venta 255.000 €
Precio/m² 970 €/m²
Año de construcción 1900
Construidos 263 m2
Útiles 236 m2
Parcela 336 m2
Dormitorios 5
Baños 6
Calificación Energética (G) VER
La dirección del inmueble es aproximada.
Contacta con tu asesor
Victor Pérez Martínez
Solicita información

Si deseas más información sobre esta propiedad, por favor, rellena el formulario: